1
/
“The Blue Cottage” – Immerse yourself into nature and tranquility!
Do you want peace and quiet? If you replied yes then, this could definitely be your next home!
The Blue Cottage is a totally off-grid property, tucked away in the hills of Tavira, with no neighbors living in the proximity and just far enough so that there are no tourists, road noise… just the sound of the wind gently blowing on the surrounding floral life and the birds. Here you can lose yourself for a weekend, a week, a month….
The house is nicely tucked into the vegetation and elevated slope to the back. The sides and front of the house are open and airy to fully appreciate the peacefulness that this special property has to offer. The house dates back prior to 1951 and is full of character and authenticity. The front patio is a typical Algarvian patio with built in benches and flower beds along the walls. A recently made light weight conservatory was the perfect solution for the current owners to fully enjoy the views and nature on the more wintery days spent at the property. Coming from northern Europe this was a blessing to them.
The house has quite a simple layout within the old thick walls. Passing the conservatory and main door you enter the open plan kitchen and sitting room with wooden ceiling beams and a cozy wood burner. The kitchen is simple but tastefully finished with lovely modern tiles. Then you have another room that is currently used as an office, extra storage space and where the technical control for the house is. There is also a small shower room, in good working condition that can be modernized and with room to easily be made bigger. Three small steps lead you into the bedroom. The current owners renovated the house about 6 years ago including a new roof with integral insulation that has been installed.
The property is fully off grid. For water there are two water tanks with a combined capacity of 2.000 liters. They sit on the higher ground of the property and work by gravity to give the necessary pressure to the water. The tanks are refilled by water delivered to the property.
The electricity is supplied via photovoltaic solar panels with batteries for power storage. If there are several days when the Sun doesn't shine then there is the capacity for a backup generator. Obviously living off-grid one has to think before using power and water as it is not switched to mains with a current flow and a hefty bill at the end of the month. Heating is rarely needed due to the thick walls but, if needed, the log burner will suffice. The current owners have stayed most years in the property from November to April and could live comfortably through those months.
The Blue Cottage distances 18kms from Tavira. Driving up the mountain road in the direction of Cachopo for about 16kms from the center of Tavira you then drive 1,6kms on a good condition dirt road up to the property. In total it should take about 25 minutes from Tavira to the house. Then there is a footpath that will lead you down to the house. The closest shop/mini-market is about 11kms from the house. Cachopo, the typical Algarvian village to the north distances 25kms from the house and where you can find all basic amenities.
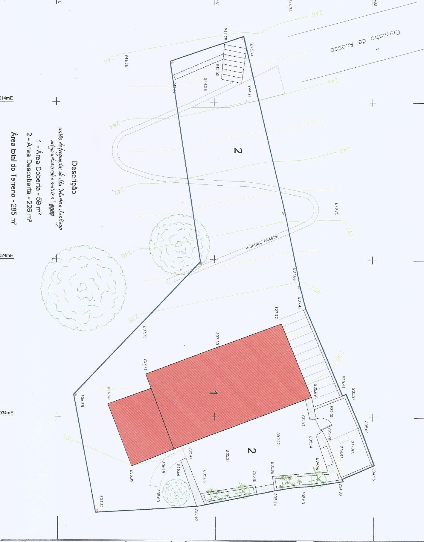
The property has a total land area of 285sqm, the house 59sqm and the yearly tax is 28euros!
Being an off grid property and an isolated property, this is not for everyone but, if you are the one, you can be sure that “The Blue Cottage” will be a very special, tranquil, authentic and charming place.
The Blue Cottage is a totally off-grid property, tucked away in the hills of Tavira, with no neighbors living in the proximity and just far enough so that there are no tourists, road noise… just the sound of the wind gently blowing on the surrounding floral life and the birds. Here you can lose yourself for a weekend, a week, a month….
The house is nicely tucked into the vegetation and elevated slope to the back. The sides and front of the house are open and airy to fully appreciate the peacefulness that this special property has to offer. The house dates back prior to 1951 and is full of character and authenticity. The front patio is a typical Algarvian patio with built in benches and flower beds along the walls. A recently made light weight conservatory was the perfect solution for the current owners to fully enjoy the views and nature on the more wintery days spent at the property. Coming from northern Europe this was a blessing to them.
The house has quite a simple layout within the old thick walls. Passing the conservatory and main door you enter the open plan kitchen and sitting room with wooden ceiling beams and a cozy wood burner. The kitchen is simple but tastefully finished with lovely modern tiles. Then you have another room that is currently used as an office, extra storage space and where the technical control for the house is. There is also a small shower room, in good working condition that can be modernized and with room to easily be made bigger. Three small steps lead you into the bedroom. The current owners renovated the house about 6 years ago including a new roof with integral insulation that has been installed.
The property is fully off grid. For water there are two water tanks with a combined capacity of 2.000 liters. They sit on the higher ground of the property and work by gravity to give the necessary pressure to the water. The tanks are refilled by water delivered to the property.
The electricity is supplied via photovoltaic solar panels with batteries for power storage. If there are several days when the Sun doesn't shine then there is the capacity for a backup generator. Obviously living off-grid one has to think before using power and water as it is not switched to mains with a current flow and a hefty bill at the end of the month. Heating is rarely needed due to the thick walls but, if needed, the log burner will suffice. The current owners have stayed most years in the property from November to April and could live comfortably through those months.
The Blue Cottage distances 18kms from Tavira. Driving up the mountain road in the direction of Cachopo for about 16kms from the center of Tavira you then drive 1,6kms on a good condition dirt road up to the property. In total it should take about 25 minutes from Tavira to the house. Then there is a footpath that will lead you down to the house. The closest shop/mini-market is about 11kms from the house. Cachopo, the typical Algarvian village to the north distances 25kms from the house and where you can find all basic amenities.
The property has a total land area of 285sqm, the house 59sqm and the yearly tax is 28euros!
Being an off grid property and an isolated property, this is not for everyone but, if you are the one, you can be sure that “The Blue Cottage” will be a very special, tranquil, authentic and charming place.
Property Features
- Fireplace
- Double glaze windows
- Terrace
- Built year: 1951
- Energetic certification: Exempt
- Countryside location
Villa T1 - Santa Maria, Tavira, for sale
Sale price
189 000 €
Currency converter
Ref: 1262-v
- 1
- 1
- 59 m2
- 285 m2
Henrique Patterson
Mobile: 927617131
(Call to national mobile network)
Email: patterson.henrique@gmail.com
Know moreEnquire
en