1
/
Apartamento de três quartos com terraço no telhado, jacuzzi e garagem dupla
Este é um apartamento impecável, pronto para se mudar, muito iluminado e espaçoso. Localizado no terceiro e último andar, com acesso interno a um grande terraço no telhado com vistas lindas, jacuzzi e cozinha externa e churrasco. Todas as comodidades à sua porta e a Ponte Romana fica a apenas 900 metros! Uma garagem dupla fechada no porão torna este belo apartamento a escolha racional ao comprar um imóvel em Tavira.
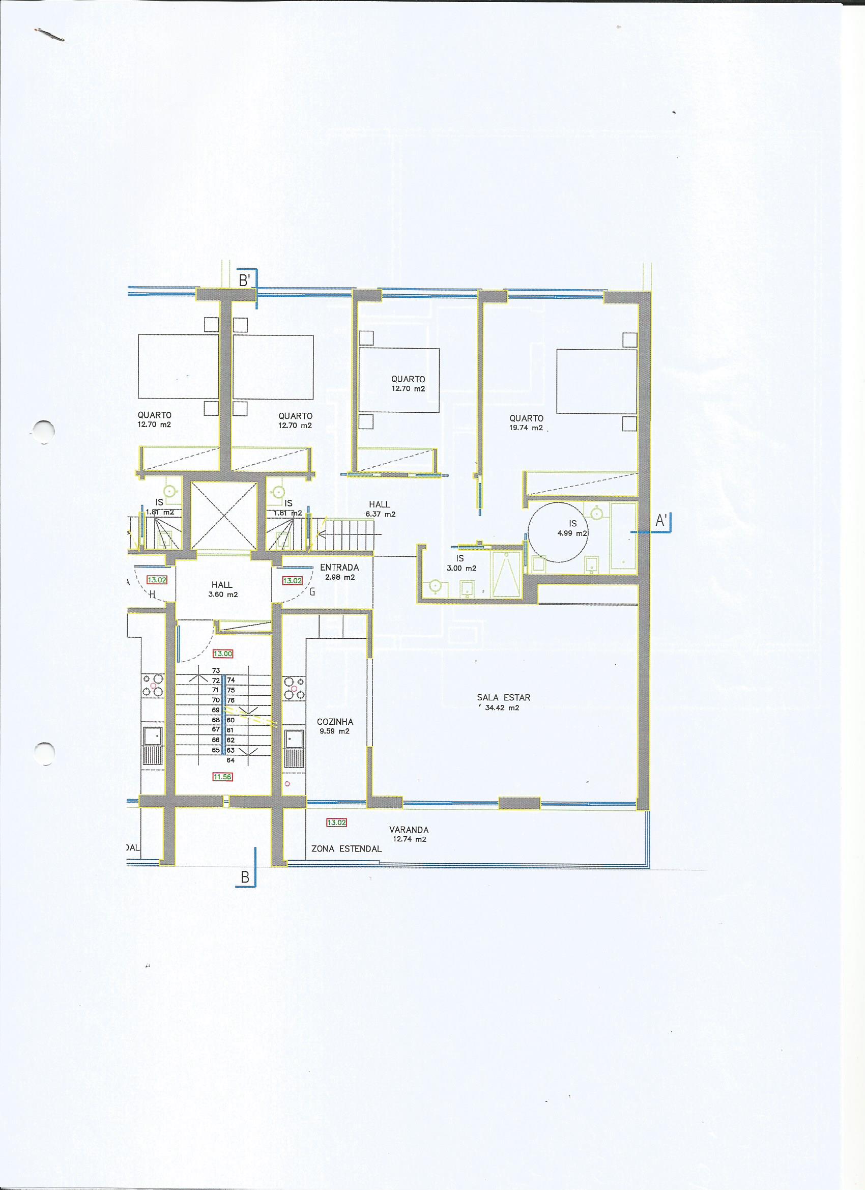
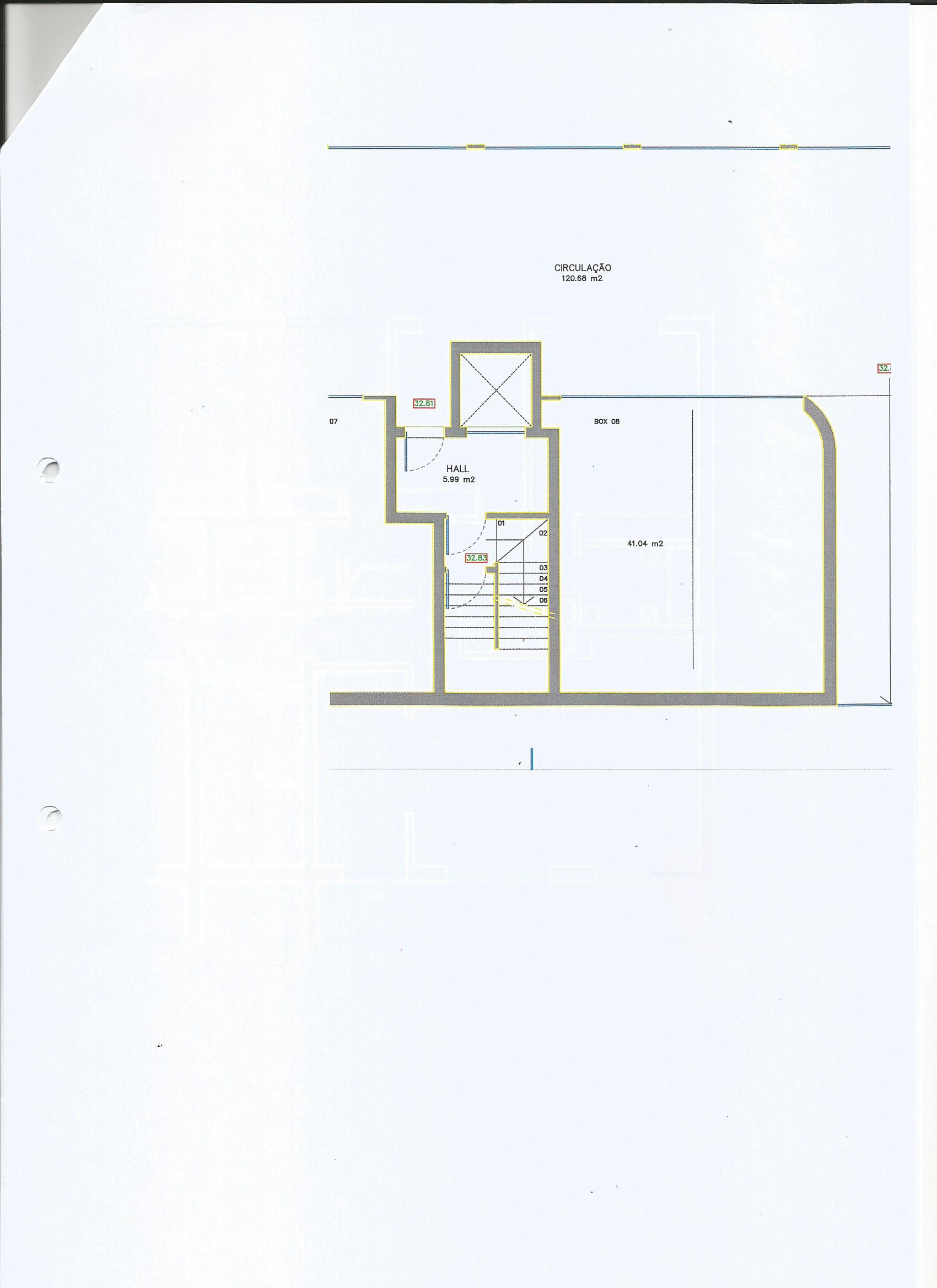
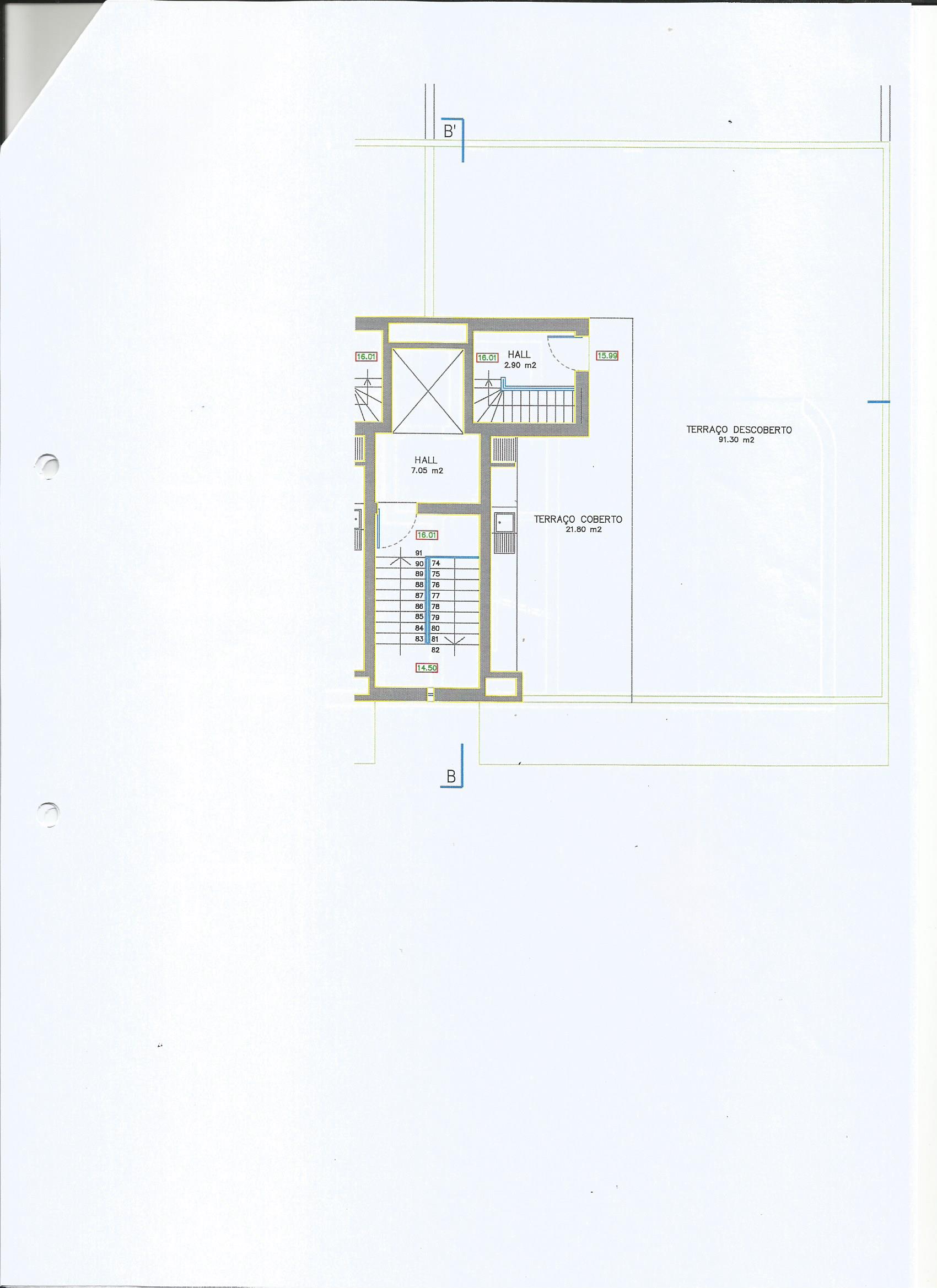
O apartamento possui uma área total excepcional de 278,08 m². O interior do apartamento possui 111,20 m², além de uma varanda voltada para o leste, com 12,74 m² para aproveitar café da manhã ao sol. O terraço no telhado, com acesso interno e área de patamar, tem uma área total de 113,10 m², dos quais 21,80 são cobertos, onde você encontra a cozinha externa e a área de churrasco. Há uma jacuzzi muito agradável e muitas áreas para relaxar ao sol. Abaixo, no porão, o apartamento possui sua própria garagem dupla privada, com área total de 41,04 m².
O apartamento vem totalmente mobiliado, vendido como visto. Também possui aquecimento por piso nos banheiros, ar-condicionado em todo o corpo e sistema solar para aquecer a água. O custo mensal do condomínio é de apenas 49,80, o que faz deste um imóvel muito eficiente em termos de custos.
O apartamento possui uma área total excepcional de 278,08 m². O interior do apartamento possui 111,20 m², além de uma varanda voltada para o leste, com 12,74 m² para aproveitar café da manhã ao sol. O terraço no telhado, com acesso interno e área de patamar, tem uma área total de 113,10 m², dos quais 21,80 são cobertos, onde você encontra a cozinha externa e a área de churrasco. Há uma jacuzzi muito agradável e muitas áreas para relaxar ao sol. Abaixo, no porão, o apartamento possui sua própria garagem dupla privada, com área total de 41,04 m².
O apartamento vem totalmente mobiliado, vendido como visto. Também possui aquecimento por piso nos banheiros, ar-condicionado em todo o corpo e sistema solar para aquecer a água. O custo mensal do condomínio é de apenas 49,80, o que faz deste um imóvel muito eficiente em termos de custos.
Características da Propriedade
- Aquecimento
- Ar condicionado
- Chão aquecido
- Terraço
- Garagem
- Mobilado
- Ano construção: 2019
- Terraço topo
- Elevador
- Curta distância a pé da praia
- Localização central
- Certificação energética: A
Apartamento T3 - Tavira, Tavira, venda
Valor venda
645 000 €
Conversor de moeda
Ref: 1259-A
- 3
- 2
- 278,08 m2
Henrique Patterson
Telemóvel: 927617131
(Chamada para rede móvel nacional)
Email: patterson.henrique@gmail.com
Saber maisContacto
Propriedades semelhantes
pt